דלג לתוכן
  • ראשי
  • אודות הפרויקט
  • מלאי דירות
  • מיקום הפרויקט
  • גלריה
  • יזמים
  • מסמכים משפטיים
תפריט
  • ראשי
  • אודות הפרויקט
  • מלאי דירות
  • מיקום הפרויקט
  • גלריה
  • יזמים
  • מסמכים משפטיים
תצפית 360
ג׳ 4 חתום
חוזה חתום
ייפוי כוח בלתי חוזר נוטריוני
ייפוי-כח-לבחירת-דירה-בין-בני-זוג
מפרט סופי וחתום
הצמדות חניות ומחסנים
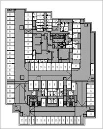
תכנית מרתף קומה -1
תכנית מרתף קומה -2
תכנית מרתף קומה -3
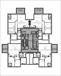
תכנית קומה טיפוסית מגדל - קומות 2-26
תכנית קומה טיפוסית בנייני בוטיק - קומות 2-7
חישוב מחיר דירה

כל הזכויות שמורות